Brechbuehler Walser Architekten

Zweierstrasse 106   8003 Zürich

044 515 45 35   044 515 45 79      mail@brechbuehlerwalser.ch   www.brechbuehlerwalser.ch

Projekte

Wettbewerbe

Büro

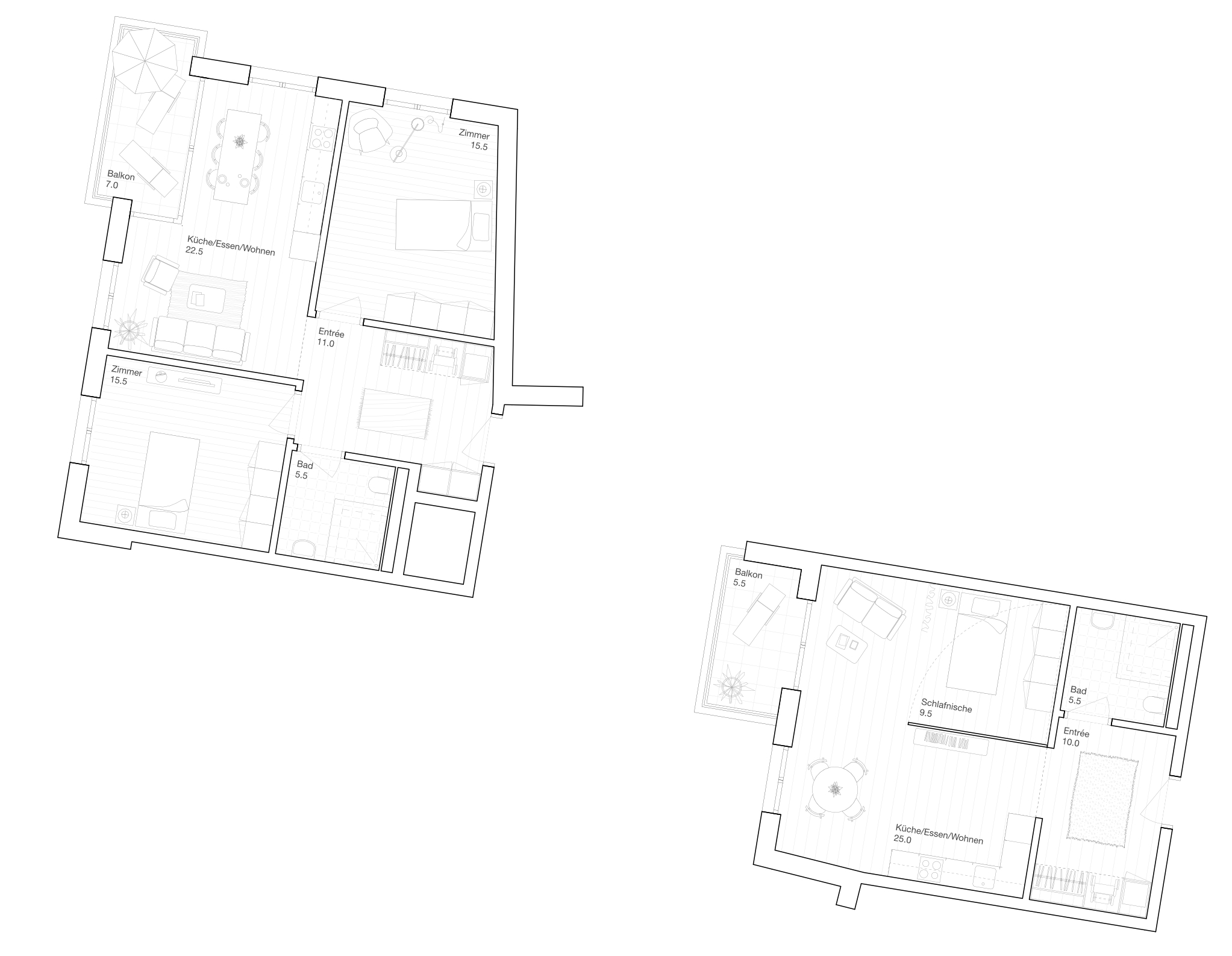
Wohnbauten Hans Hässig-Strasse, Aarau

4. Rang
mit Michel Frey Landschaftsarchitekten
und Drees & Sommer Schweiz


Die bestehende Wohnüberbauung aus den 1950er Jahre zeichnet sich durch ihren ausserordentlichen Charme sowie ihre grossen städtebaulichen und aussenräumlichen Qualitäten aus.
Die südliche Parzelle weist grosse Ausnützungsreserven aus. Deshalb wird ein adequater Ersatzneubau vorgeschlagen, der sich an den Qualitäten des Bestandes orientiert, diese konsequent weiterentwickelt und günstige und räumlich qualitätsvolle Mietwohnungen schafft. Im Gegensatz dazu wird beim nördlichen Baukörper aufgrund der besseren Ausnutzung, der intakten Substanz und der bereits guten Grundrisse nur eine sanfte Instandstellung vorgeschlagen.
Mit dieser Mischung werden vorhandene Ressourcen optimal genutzt und aktuelle gesellschaftliche und soziale Aspekte wie Hindernisfreiheit, Re-Use von Materialien, günstige Mietpreise und Erhalt bestehender Mieterverhältnisse vollumfänglich erfüllt.

hanshaessig1 hanshaessig2 hanshaessig3 hanshaessig4 hanshaessig5
Gesamtsanierung Brandschenkestrasse, Zürich

Studienauftrag für Allreal AG
mit Bardak Fassadenplanung

Das ikonografische Wohn- und Geschäftshaus aus dem Jahr 1992 prägt mit seinem prominenten Erker als Eckhaus den westlichen Eingang in die City über die Brandschenkestrasse.
Für den in die Jahre gekommenen Auftritt im Äusseren wie im Innern sucht die Bauherrschaft einen zeitgenössischen, nachhaltigen & qualitativ hochwertigen Ersatz.
Die neue Fassade komplett in Holz berücksichtigt statische Gegebenheiten auf ideale Weise und verbindet Nachhaltigkeit mit einer repräsentativen Ästhetik.
Gleichzeitig werden Adressen und Ankunft neu ausgestaltet und im Innern die Struktur bereinigt, sodass aus dem Bestand neue, attraktive und flexible Bürogrundrisse sowie stilvolle, zeitgemässe Wohnungen entstehen.
Als erstes Holzhaus im Kreis 1 wird der Stellenwert des Gebäudes für die Zukunft nachhaltig gesichert und die Struktur in einen neuen Nutzungszyklus überführt.

brandschenke1 brandschenke2 brandschenke3 brandschenke4 brandschenke5
Alterswohnen Wangensbach, Küsnacht

mit Mettler Landschaftsarchitektur

Der Ersatzneubau des Alters- und Pflegeheims auf dem ehemaligen Landgut Wangensbach fügt sich harmonisch in die historisch wertvolle und ortsbildprägende Situation aus Kulturland, Gartenanlage, Landhaus und Ökonomiegebäude ein und komplettiert das Ensemble.
Das neue Hauptgebäude gruppiert sich mit den bestehenden Bauten um einen neuen zentralen Hof mit Blick auf den See. Der Anbau liegt direkt an der Strasse und bildet zusammen mit dem bestehenden Ökonomiegebäude die Adresse zum gesamten Areal.
Um das neue Ensemble gruppieren sich verschiedene Landschaftsgärten, eine Aussichtserrasse und ein Hausgarten als vielfältige Aussenräume.
Während im Erdgeschoss öffentliche Nutzungen wie der Spitexstützpunkt, das Gesundheitsnetz und ein Bistro angesiedelt sind, befinden sich in den Obergeschossen 25 Alterswohnungen mit Loggien und direktem Blick auf den See.

wangensbach1 wangensbach2 wangensbach3 wangensbach4 wangensbach5
Alterswohnen Tägermoos, Küsnacht

7. Preis
mit Mettler Landschaftsarchitektur

Das stark abfallende Grundstück befindet sich am nördlichen Ende des Naherholungsgebiets rund um den Schübelweiher und bildet zur Kantonsstrasse im Westen den Abschluss der Siedlung.
Der neue, beidseitig schmal zulaufende Baukörper steht zentral in der Parzelle, so dass ihn beidseitig grosszügige Freiräume umfliessen. Die feine, erkerartige Gliederung stellt den Bezug zur umliegenden kleinmassäblichen Bebauung her.
Das Konzpet des selbstbestimmten und selbstständigen Wohnens im Alter wird durch die 52 vielfältig möblierbaren Wohnungen und die in unterschiedlichen Massstäben vorhandenen Möglichkeiten der sozialen Vernetzungen geprägt. Diese finden sich in verschiedenen Gemeinschaftsbereichen auf den Geschossen sowie im öffentlichen Erdgeschoss, das ein Parkcafé, ein Mehrzweckraum, einen Fitnessbereich und verschiedene Aussenbereiche mit Garten umfasst.

tägermoos1 tägermoos2 tägermoos3 tägermoos4 tägermoos5
Seeuferpark, Uetikon am See

5. Preis
mit Mettler Landschaftsarchitektur

Der neue Seeuferpark steht auf dem Gelände der ältesten Schweizer Chemiefabrik und ist Teil der Transformation des Areals zum neuen Kantons- und Berufsfachschulcampus.
Das Areal weist ein eindrückliches Gebäudeensemble als letzte Grossindustrieanlage am Zürichsee auf. Die exponierte Lage und die Nähe zu den ländlichen Strukturen verstärken das fremdartige Erscheinungsbild des Areals zusätzlich.
Mit den Relikten aus dem Industriezeitalter wird ein Industriepark und Stadtgartencharakter erzeugt. Die transformierte lichte Haupthalle spannt sich als Schattendach über einen grossen Teil der Parkfläche und dient als multinutzbare und aneigenbare Fläche für Sport, Freizeit, Nutzgarten, Palmenhaus und Spielflächen.
Die alte Malerwerkstatt an zentraler Stelle wird in ein neues Werkstattcafé transfomiert.

Visuals 3dstudio.ch

seeuferpark1 seeuferpark2 seeuferpark3
Schwimmbad Sonnenberg, Engelberg

3. Preis
mit Mettler Landschaftsarchitektur

Das Schwimmbad Sonnenberg liegt leicht ausserhalb des Kerns von Engelberg am privilegierten Südhang. Die topographische Ausgangslage ist einzigartig. Leicht verdeckt zwischen zwei Wohnbauten eröffnet sich bei Durchgang ein imposanter, dreiseitig in den Hang geschmiegte Senke mit eindrücklichem Ausblick ins Alpenpanorama.
Der langgezogene Baukörper mit Satteldach schmiegt sich an den abgestuften Hang im Osten des Kessels und trennt auf natürliche Weise Zugang und Anlieferung von der sonnigen Badewiese im Südosten. Die expressive Giebelseite im Süden bildet eine neue, attraktive Adresse.
Der Niveausprung wird geschickt in zwei Ebenen im Gebäude weitergeführt und trennt Eingang mit Kasse und Restaurant auf dem Dorfniveau vom Innenbecken mit den Garderoben und der Liegewiese mit den Aussenbecken auf dem Gartenniveau.
Der Holzbau verfügt über ein extrem kompaktes Volumen und erfüllt bezüglich Nachhaltigkeit hohe Ansprüche.

engelberg1 engelberg2 engelberg3 engelberg4
Wohnüberbauung Strubenacher, Zumikon

Studienauftrag für Allreal AG
mit Mettler Landschaftsarchitektur

Die Parzelle im Strubenacher wird von der ländlichen Lage am nördlichen Ortsrand von Zumikon und der charakteristigschen Topographie geprägt.
Vier gereihte Hausgruppen schmiegen sich entlang der Parzellengrenzen und drehen sich um eine hofähnliche Mitte windradmässig auf, sodass sich der Innenhof in alle Himmelsrichtungen öffnet. Die einzelnen Hausgruppen sind der Topographie folgend in der Höhe und im Grundriss leicht zueinander versetzt. Jede Hausgruppe besteht aus fünf Einfamilienhäuser, in den total 20 Häuser werden drei leicht unterschiedliche Haustypen vorgeschlagen.
Als Gemeinsamkeit verfügen alle Häuser über ein Erdgeschoss mit Wohn- und Essnutzung mit zweiseitiger Ausrichtung zu unterschiedlichen privaten Aussenräumen. Im Obergeschoss finden sich zwei bis drei Schlafzimmer. Im Attikageschoss sind zusätzliche Flächen für Zimmer, Homeoffice, Hobby möglich.

Visuals 3dstudio.ch

strubenacher1 strubenacher2 strubenacher3 strubenacher4
Neugestaltung Hafenpromenade Enge, Zürich

2. Preis
mit Mettler Landschaftsarchitektur

Das neue Stück Hafenpromenade, welches auf dem ehemaligen Parkplatz Hafen Enge ensteht, liegt nahe des Stadtzentrums, zwischen Arboretum und ehemaligem Landesausstellungsareal mit den repräsentativen Bauten von Swiss-Life, Zurich Insurance und Swiss Re im Rücken. Mit dem neuen Stadtwäldchen bildet die Hafenpromenade eine grüne Oase und einen Stadtgarten und fungiert als wichtiger Treffpunkt und robuste, vielfältig nutzbare Aufenthaltsfläche, die sich in unterschiedlichster Weise aneignen lässt.
Der Pavillon mit Kiosk, kleiner Küche und öffentlichen Toilettenanlage orientiert sich in der Form- und Materialgebung an den Leichtbauten der Hafenanlagen. Die leichte, weisse Erscheinung des Pavillons im Kontrast mit den dunklen naturholzfarbenen Ständer bildet raumbildende und auch aus der Ferne wirkende Elemente. Einem Segelboot gleich, die Crew an Bord und mit gesetztem Segel ist Voilà bereit in den See zu stechen.

Visuals 3dstudio.ch

enge1 enge2 enge3 enge4
Neubau Längsbau, Integra Square, Wallisellen

1. Preis

Der Längsbau besitzt die privilegierte Lage direkt neben der alterwürdigen der Fabrikhalle als identitätsstiftendes Herzstück des INTEGRA Squares. Dabei wird der Längsbau direkt an die Halle angebaut. Die neuinterpretierte Südfassade dient dabei als Nahtstelle und gleichzeitig als Verbindung zur Fabrikhalle. Damit wird das Erdgeschoss des Längsbaus nicht nur funktional als Erweiterung der Fabrikhalle verstanden, sonder bildet mit der Ausbildung der Arkade das repräsentative Gesicht zum Süden.
In den 6 Obergeschossen befinden sich je 8 oder 9 Wohnungen. Alle Wohnungen verfügen über mindestens zwei Fassadenseiten. Im Süden bildet eine durchlaufende, mäandrierende Balkonschicht grosszügige, mit Brüstungen versehene, vom Wind und Blicken geschützte Aussenräume. Die durchgesteckten Wohn- und Essräume erhalten im Norden zusätzlich kleinere ausladende Balkone mit freier Aussicht über die Oblichter der Fabrikhalle und die Bahngleise. Das Wohnen über der ehemaligen Industrie Wallisellens erhält damit ein Hauch von kosmopolitischer Urbanität und einen unverwechselbaren Charakter.

Visuals 3dstudio.ch

integrasquare1 integrasquare2 integrasquare3 integrasquare4 integrasquare5
Erneuerung Waldbad Zimmeregg, Luzern

1. Preis
mit Mettler Landschaftsarchitektur

Das Waldschwimmbad Zimmeregg wurde 1967 in der idyllischen Waldlichtung auf dem Zimmeregghügel bei Luzern erstellt. Seither erfreut es sich ungebrochen starker Beliebtheit bei der Bevölkerung.
Inzwischen ist das Betriebsgebäude und die Infrastruktur in die Jahre gekommen, die Betriebsabläufe sind uneffizient und verschiedene Umbauten und Ergänzungen verunklären das Bild. Um den langfristigen Betrieb des Waldbades sicherzustellen bedarf es einer grundsätzlich neuen Lesung der Situation. Einerseits soll die ursprüngliche Idee des Badens in der Waldlichtung durch eine neue und einfache Setzung des Betriebsgebäudes wieder verstärkt zur Geltung gebracht werden. Andererseits soll die ganzjährige Aufenthaltsqualität auf der Lichtung durch eine sanfte Neuordnung der Bereiche gesteigert und durch neue Attraktionen ergänzt werden.

zimmeregg1 zimmeregg2 zimmeregg3
Arealentwicklung Viererfeld / Mittelfeld, Bern

mit Baukontor Architekten Zürich
und Michel Desvigne Paysagiste Paris


Das Viererfeld liegt nahe der Berner Altstadt in schönster landschaftlicher Lage über der Aare. Hier soll ein neues Quartier mit neuem Stadtpark entstehen.
Das neue Rückgrat des Quartiers bildet die Viererfeldgasse, eine leicht geknickte, der Topographie folgende Strasse, die auf die Berner Marktgasse verweist. Daran anschliessend werden Baufelder gegliedert und als moderne Version des Stadtblocks ausgebaut, die dessen Vorzüge der deutlichen Trennung von öffentlichen und privaten Räumen mit der Möglichkeit verbindet, das städtische Gefüge visuell und funktional durchlässig zu halten.
Die Baufelder sind derart ausgeschieden, dass pro Baufeld eine grosse typologische Vielfalt von Gebäuden und Wohnungen möglich ist und somit unterschiedliche Bauträger zum Zuge kommen können.

viererfeld1 viererfeld2 viererfeld3 viererfeld4 viererfeld5 viererfeld6
Ersatzneubau Wohnsiedlung Hardau I, Zürich

6. Preis
mit Stefanie Scherer und Mettler Landschaftsarchitektur

Die neue Siedlung Hardau I soll an der Schnittstelle zwischen geschlossenen Blockrandstruktur und der offenen Siedlung Hardau II entstehen. Prägend für den Ort sind die grossen Stadtpärke Hardau-park, Bullingerhof und der Friedhof Sihlfeld.
Der erste Baukörper grenzt die Siedlung zur Hardaustrasse ab und säumt den Eingang zum Hardaupark angemessen. Im Inneren gliedert ein zweiter Baukörper den Raum in verschiedenartige, offen miteinander verbundene Höfe, die unterschiedlichen Bedürfnissen gerecht werden und mittels eines Wegnetzes mit der Nachbarschaft verbunden sind. Im Erdgeschoss werden gemeinschaftliche Nutzungen, Gewerbeflächen, Ateliers und ein Kindergarten angeordnet.
Die Wohnungen verfügen über einen Grundriss, der aus ähnlich grossen, flexibel nutzbaren Zimmern zusammengesetzt wird. Als Herzstück der Wohnung wird die Erschliessungsfläche als natürlich belichtete Halle entworfen, die bei Maximalbelegung auch als Ess- oder Wohnzimmer benützt werden kann. Ergänzend können mehrere Wohnungen als Clusterwohnungen zusammengelegt werden.

hardau1 hardau2 hardau3 hardau4 hardau5
Neuüberbauung Mürtschen- / Oberseestrasse, Rapperswil-Jona

Das Areal Oberseestrasse/Mürtschenstrasse befindet sich in einem stark durchgrünten Wohnquartier an hervorragender Lage in der Nähe des Zentrums und des Sees.
Das Projekt knüpft an der Idee des Wohnens im Grünen an und setzt es als "Wohnen im Park" um. Es werden villenartige Einzelhäuser so in den Park gesetzt, das jedes Haus umgeben von Bäumen im Grünen steht. Dadurch entsteht eine grosse Durchlässigkeit in der ganzen Siedlung und gleichzeitig eine Vielfältigkeit von differenzierten gemeinsamen Aussenräumen. An den Gebäudeecken sind jeweils Loggiatürme angeordnet, die sich eine möglichst freie Himmelsrichtung suchen um eine maximale Privatheit dieser privaten Aussenräume zu erreichen. Als zentrales Element der Wohnung gruppiert sich seitlich um die Loggia die Küche und das Ess- und Wohnzimmer.
Für die Nachverdichtung ist die Siedlung so konzipiert, dass jeder viergeschossige Baukörper um ein Attikageschoss erweitert werden kann.

rapperswil1 rapperswil2 rapperswil3 rapperswil4
Ersatzneubau Wohnsiedlung Waidmatt, Zürich

8. Preis
mit Stefanie Scherer & Mathis Kamplade Liebscher Architekten und Mettler Landschaftsarchitektur

Die Wohnsiedlung Waidmatt liegt eingebettet in einer bunt gemischten vorstädtischen Bebauung. Die Struktur variiert dabei von städtisch dicht an der stark befahrenen Wehntalerstrasse bis hin zu locker offen zur Landwirtschaftszone im Norden.
Aus den unterschiedlichen Situationen werden 3 verschiedene städtebauliche Typologien und Wohnformen abgeleitet: Der Wehntalerhof bietet in einer geschlossenen Randbebauung dichtes urbanes Wohnen, der Gartenhof bietet durch die seg-mentierte Randbebauung Wohnen direkt am Park und die In Böden- und Riedenhalden-Häuser ermöglichen als frei-stehenden Mehrfamilienhäuser das Leben im Grünen.
Gemeinsam ist der gesamten Bebauung, dass alle Typen in der Körnung als Einzelgebäude in Erscheinung treten und so die Atmosphäre der Gartenstadt zelebrieren. Zudem sind alle Aussenräume durch ein Wegnetz untereinander verbunden.

waidmatt1 waidmatt2 waidmatt3 waidmatt4 waidmatt5
Neubau Neues Wohnen am Bahnhof, Flawil

1. Preis

Das Wohngebäude mit öffentlichen Nutzungen im Erdgeschoss steht selbstbewusst am neuen Bahnhofsplatz von Flawil.
Die repräsentative Fassade wird durch ein Sockelgeschoss und einem Gurtgesimse im obersten Geschoss in den Kontext ein- gepasst. Die Profilierung der Betonelemente führt zusammen mit den französischen Fenstern und den Geländern zu einem reichhaltigen, feingliedrigen Ausdruck, der sich in die kleinteilige Umgebung einfügt.
Im Erdgeschoss richtet sich das Restaurant zusammen mit der Arkade auf den Bahnhofsplatz und bildet dadurch eine öffentliche Adresse. Der Wohnungseingang liegt geschützt an der Oberdorf- strasse und führt direkt in die Eingangshalle. Diese ist mit den beiden ineinander verschränkten Wohnhöfen in den Ober- geschossen verbunden und wird so mit Tageslicht versorgt.
Pro Geschoss sind ringförmig 8 altersgerechte Wohnungen angeordnet, die wenn immer möglich Ausblicke in zwei ver- schieden Richtungen gewähren und über eine Loggia verfügen.

flawil1 flawil2 flawil3 flawil4 flawil5
Neubau Haus D, Wohnsiedlung Rossrüti, Wil
Bebauungsvorschlag von Architekturbüro M. Šik

1. Preis

Zentrales Merkmal des Bebauunsvorschlags für die Parzelle sind zwei konisch zulaufende Plätze für die Gemeinschaft. Als weiteres wichtiges und ordnendes Element wirken die punktförmigen Wohnhäuser, die paarweise gesetzt sind und auf die Geometrie der Teilflächen zwischen Platz und Quartier eingehen.
Der Typus des modifizierten Flarzhauses weist einen quadratischem Fussabruck und einen zentralen ungedeckten Atriumraum auf und richtet seine Adresse immer zum jeweiligen Platz. Dabei ist er sehr wandlungsfähig und lässt variable Wohnungslösungen zu.
Exemplarisch dafür wurden vom Architekturbüro Miroslav Šik, den Büros Andreas Buschmann, Scherer & Trunz ArchitektInnen, Hannes Rutenfranz und Brechbuehler Walser Architekten je ein mögliches Beispiel erarbeitet.

rossrueti1 rossrueti2 rossrueti3 rossrueti4
Projektwettbewerb Neubau Alterswohnungen Im Weingarten, Rüschlikon

mit Stephan Liebscher

Im Herzen von Rüschlikon liegt das Grundstück direkt an der Bahnlinie mit schöner Sicht auf den Zürichsee. Die Gemeinde möchte hier altersgerechte Wohnungen erstellen.
Die Gliederung in zwei Baukörper wiederspiegelt die Körnigkeit der Umgebung und ermöglicht ein Ensemble von Einzelhäuser entlang der Geleise.
Die Wohnungen zeichnen sich durch eine Individualisierung auf die jeweilige Situation in der Anlage aus. Gemeinsam verfügen aber alle über die Zweiseitigkeit der Ausrichtung:

Der Wohnraum mit Balkon ist Richtung Osten und zum See orientiert, die Wohnküche im Westen ist zur Abendsonne ausgerichtet und kann im Sommer durch das Öffnen eines grossen Wintergartenfensters in einen loggiaartigen Aussenraum verwandelt werden.

Im Erdgeschoss sind pro Haus die einzelnen Foyers und Gästezimmer angeordnet. Gemeinschaftsräume runden das Angebot ab.

weingarten1 weingarten2 weingarten3 weingarten4
Planerwahlverfahren Erneuerung Mehrfamilienhäuser,
Hohlstrasse und Hellmutstrasse, Zürich

2. Preis

Bei den fünf Liegenschaften der WOGENO an der Hohl- und der Hellmutstrasse handelt es sich um einfache, solide Bauten aus dem ausgehenden 19. Jahrhundert mit knapp aber funktional geschnittenen Grundrissen.
Jede der 28 Wohnungen verfügt bei Küche und Bad über einen sehr inhomogenen Ausbaustandard und die Oberflächen in allen Räumen sind in sehr unterschiedlichem Zustand. Die Beheizung erfolgt zudem über unterschiedlichste Methoden und die sanitären Stränge haben ihre maximale Lebensdauer erreicht.
Um trotz wirtschaftlich knappem Budget und nicht präzise abschätzbaren Bedingungen einen gewissen durchgehenden Standard zu erreichen ohne dabei wohnungsspezifische Eigenheiten und Charakterisika wegrenonvieren zu müssen wird ein Konzept vorgeschlagen, das die Umbaumassnahmen in prioritäre/zwingende und sekundäre/fakultative Baumassnahmen einteilt, um flexibel auf jede einzelne Wohnung separat reagieren zu können.

hellmi1 hellmi2 hellmi3 hellmi4
Projektwettbewerb Ersatzneubauten Wohnsiedlung Quellengarten, Aarau-Rohr

mit Andreas Buschmann und parbat Landschaftsarchitektur

Die genossenschaftliche Wohnsiedlung liegt eingebettet in eine bunt gemischte vorstädtische Bebauung. Das Ensemble von vier Baukörper gruppiert sich lose um einen Hof als gemeinschaftliche Mitte und behält gleichzeitig die quartiertypische Durchlässigkeit bei.
Die Wohnungen zeichnen sich aus über einen grosszügigen privaten Aussenraum als jeweils zum Hof hin orientierte Pergola und eine grosszügige Diele als Zentrum der Wohnung, die je nach Bedürfnis mit der Wohnküche zusammengeschaltet oder als separaten Raum benützt werden kann.
Der Hof wird als Mitte der Siedlung zum begrünten Platz und dient als gemeinschaftlicher Aussenraum für verschiedene Aktivitäten.

quellengarten1 quellengarten2 quellengarten3 quellengarten4
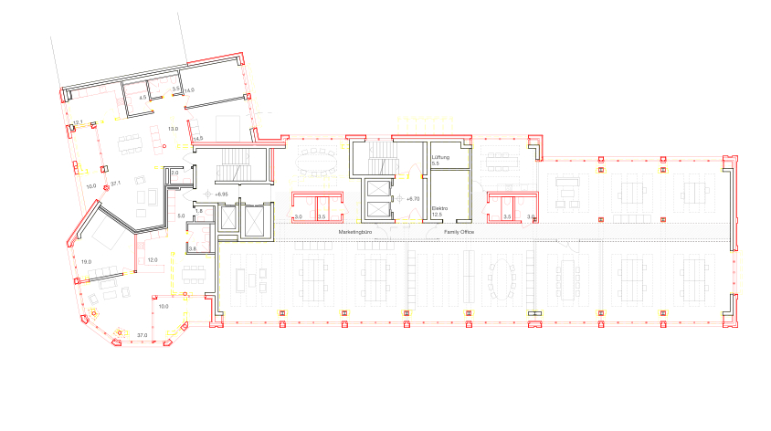
Projektwettbewerb Neubau Gemeindehaus und Bauamt,
Fischbach-Göslikon

3. Preis, mit planikum Landschaftsarchitektur

Zentral zwischen den beiden Gemeindeteilen Fischbach und Göslikon liegt die Parzelle für das neue Gemeindehaus.
Der allseitige Baukörper bildet Richtung Norden einen Vorplatz mit Werkhof und nach Süden einen Dorfplatz, der eine spätere Erweiterung des Perimeters für eine neue Wohnsiedlung ermöglicht.
Der Publikumsbereich mit den zugehörigen Behördenschalter liegt direkt im Erdgeschoss; eine geschützte Erschliessung verbindet die beiden Abteilungen mit dem Obergeschoss und zusätzlichen Büros, Sitzungszimmer und Archiv.
Im Untergeschoss sind Parkplätze und Fuhrpark angeordnet.

fischbach1 fischbach2 fischbach3 fischbach4
Projektwettbewerb Neubebauung Watterstrasse 117 und 121, Regensdorf

2. Preis, mit planikum Landschaftsarchitektur

Prominent an der zentralen städtebaulichen Achse Watterstrasse setzt sich das neue Wohn- und Gewerbehaus. Es komplettiert gegen Süden den kürzlich gestalteten repräsentativen Gemeindehausplatz und bildet gleichzeitig gegen Westen einen neuen, chaussierten Dorfplatz.
Im Schatten von neu gepflanzten Gleditsien und auf der Terrasse des neuen Dorfcafes kann hier verweilt werden. Zum Gemeindehausplatz hin finden neue Gewerberäume oder optional die Gemeindebibliothek Raum.
In den Obergeschossen sind jeweils 3 dreiseitig orientierte Wohnungen angeordnet.

watterstrasse1 watterstrasse2 watterstrasse3 watterstrasse4
Projektwettbewerb Neubau Sporthalle Tellenfeld, Amriswil

2. Preis, mit Christian Bühlmann

Die neue Sporthalle ergänzt das Angebot im Sportgarten Tellenfeld um eine Halle für repräsentative Sportanlässe und Infrastruktur für Aussenanlässe.
Die halb versenkte Halle ermöglicht für das Publikum einen ebenerdigen Zugang an die Tribünen von allen Seiten. Die Infrastruktur mit Garderoben, Toilettenanlagen und Gastronomie ist seitlich an der Halle angelegt, dass sie im Sommer separat von der Halle betrieben und benützt werden kann.

amriswil1 amriswil2 amriswil3 amriswil4
Projektwettbewerb Ersatzneubau Knabenschulhaus,
Oberegg AI

3. Preis

Das neue Knabenschulhaus ersetzt das alte Schulhaus an gleicher Stelle und bildet neben einer repräsentativen Adresse zum Kirchplatz neu auch eine solche zum dahinterliegenden Schulhof.
Im Inneren öffnet sich eine durchgesteckte Eingangshalle diesen beiden Plätzen. Eine offene Treppenanlage verbindet die Halle mit den beiden Obergeschossen mit jeweils zwei Klassenzimmern und einem Gruppenraum. Die laubengangartige Vorzone ist gleichzeitig Erschliessung, Pausen- und Garderobenbereich.

Oberegg1 Oberegg2 Oberegg3 Oberegg4
Projektwettbewerb Neubau Wohnheim Bergquelle, Lenk

3. Preis

Das neue Wohnheim Bergquelle liegt am hinteren Ende des Simmentales und bietet Platz für vier Wohngruppen, verschiedene Ateliers und eine Caféteria.
Die bestehende Scheune wird mit einem laubenartigen Kopfbau als Erschliessung ergänzt und beinhaltet Atelier- und Hauswirtschaftsräume. Die beiden ineinander verschränkten Neubauten bieten hindernisfreie Wohngruppen und die Gastronomie im Erdgeschoss.
Zusammen bilden die 3 Baukörper ein Ensemble mit einen Werk- und einen Haupthof mit Brunnen.

Lenk1 Lenk2 Lenk3 Lenk4
Projektstudie Arealüberbauung Guggach, Zürich

mit Joos & Mathys Architekten

Die neue Überbauung im nördlichen Teil Zürichs liegt an privilegierter Lage unweit des Bucheggplatzes und direkt am Naherholungsgebiet Bucheggwald. Zirka 200 attraktive Wohnungen sind nach Käuferwunsch flexibel unterteilbar.

Guggach1 Guggach2 Guggach3 Guggach4